Предлагаем изготовление крепежных изделий и металлоконструкций на собственном производстве в Москве. В ассортименте нашей продукции – анкеры 4182И, которые мы производим по ГОСТу и отгружаем оптовыми партиями клиентам из столицы, области и всех регионов России. Наша продукция выпускается из различных сортов отечественной стали, на современном производстве, реализуется по доступным ценам.
Особенности анкеров 4182И
Анкерные болты проекта 4182И предназначены для строительства контактной сети и установки металлоконструкций, используемых при электрификации железных дорог. Анкерные крепежные элементы необходимы для монтажа в основания трехлучевые с анкерной фиксацией консольных опор и регламентируются рабочими чертежами №4182 "Железобетонные трехлучевые фундаменты и анкеры с заострением подземной части для опор контактной сети», разработчиком которых выступает ОАО ЦНИИС. Новое устройство опорных оснований, созданная с целью снижения сопротивления грунта под нижней частью основания при вибропогружении, потребовала оптимизации крепежных элементов и требований к ним.
Болты анкерные серии БА-1 для ж/д электросетей используются как закладная деталь при изготовлении железобетонного основания опоры. Они выпускаются в комплекте с изолирующими трубками, которые необходимы для исключения контакта крепежа с арматурным каркасом основания. Термоусаживаемые трубки ТУТ 50/25 должны быть установлены на анкера до их монтажа в основание и бетонирования.
В комплектацию анкера 4182 входят такие компоненты:
болт анкерный;
втулка изолирующая нижняя;
втулка изолирующая верхняя;
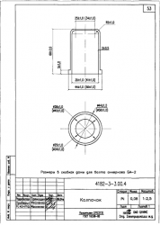
колпачок;
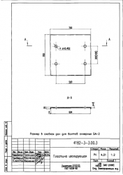
пластина изолирующая;
шайба регулировочная;
шайба.
Изделия производятся из высокопрочных и износостойких материалов, обеспечивающих длительный срок службы и устойчивость к негативных факторам возедйствия.
Заказывайте анкеры 4182И по ценам от производителя
Предлагаем ознакомиться с выбором анкерного крепежа данной серии в каталоге. Изделия производятся строго в соответствии с нормативными требованиями – как стандартных типоразмеров, так и на заказ, по запросу или чертежам заказчика. Мы работаем с клиентами без предоплаты, время изготовления партии крепежей – от 1 часа. По Москве и области продукцию привозим собственным автотранспортом, в регионы отправляем надежными перевозчиками. Чтобы купить анкеры у надежного поставщика, оформите заявку на сайте или по телефону.



















